Wilnis (de Maricken-Veenzijde) - Benedenland
maisonnette
85 m2
€ 1650 per maand
Details
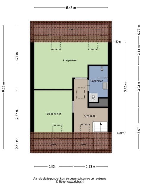
In Wilnis is een maisonnette te huur. De woning heeft een oppervlakte van 85 m2 en bestaat uit 3 kamers. De huurprijs bedraagt € 1650 per maand. De borgsom bedraagt 2 maanden huur. Beschikbaarheid: 1 maart 2026.
Meer woningen
Deze woning was beschikbaar tot 3 februari 2026.
Mocht u het actuele huurwoningaanbod willen zien, schrijft u zich dan in.
| Algemene informatie | |
|---|---|
| Plaats: | Wilnis |
| Provincie: | Utrecht |
| Wijk: | Wilnis |
| Buurt: | de Maricken-Veenzijde |
| Type woning: | maisonnette |
| Oppervlakte: | 85 m2 |
| Aantal kamers: | 3 |
| Aantal slaapkamers: | 2 |
| Aantal badkamers: | 1 |
| Postcode: | 3648LC |
| Straatnaam: | Benedenland |
| Huisdieren: | In overleg |
| Beschikbaar vanaf: | 01-03-2026 |
| Stoffering: | Gestoffeerd |
| Financiële informatie | |
|---|---|
| Huurprijs: | € 1650 per maand (exclusief) |
| Borgsom: | 2 maanden huur |
| Eigenschappen woonruimte |
|---|
| Dakterras |
| Zonnepanelen |
| Energielabel A |
| Eigenschappen omgeving |
|---|
| In een woonwijk |
| Kindvriendelijke omgeving |
| Nabij winkels |
| Nabij een school |
| Nabij medische voorzieningen |
| Voorwaarden woonruimte |
|---|
| Roken is niet toegestaan |






