Veenendaal (Koopcentrum) - Bernard van Kreelpoort
3-kamer appartement
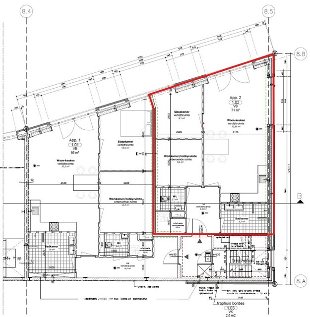
71 m2
€ 1565 per maand
Details
In Veenendaal is een 3-kamer appartement te huur. De woning heeft een oppervlakte van 71 m2 en bestaat uit 3 kamers. De huurprijs bedraagt € 1565 per maand. De borgsom bedraagt 1 maand huur.
Meer woningen
Deze woning was beschikbaar tot 27 januari 2026.
Mocht u het actuele huurwoningaanbod willen zien, schrijft u zich dan in.
| Algemene informatie | |
|---|---|
| Plaats: | Veenendaal |
| Provincie: | Utrecht |
| Wijk: | Centrum |
| Buurt: | Koopcentrum |
| Type woning: | 3-kamer appartement |
| Oppervlakte: | 71 m2 |
| Aantal kamers: | 3 |
| Aantal slaapkamers: | 2 |
| Aantal badkamers: | 1 |
| Postcode: | 3901AK |
| Straatnaam: | Bernard van Kreelpoort |
| Beschikbaar vanaf: | half maart 2026 |
| Beschikbaarheid: | binnenkort |
| Periode: | Minimaal voor 1 jaar |
| Stoffering: | Gestoffeerd |
| Financiële informatie | |
|---|---|
| Huurprijs: | € 1565 per maand (exclusief) |
| Borgsom: | 1 maand huur |
| Eigenschappen omgeving |
|---|
| In het centrum |
| Nabij winkels |
| Nabij openbaar vervoer |
| Nabij horeca |
| Voorwaarden woonruimte |
|---|
| Gunning door de eigenaar voorbehouden |






