Hilversum (Staatsliedenkwartier) - Neuweg
eengezinswoning
122 m2
€ 2850 per maand
Details
In Hilversum is een eengezinswoning uit 1927 te huur. De woning heeft een oppervlakte van 122 m2 en bestaat uit 4 kamers. De huurprijs bedraagt € 2850 per maand.
Meer woningen
Deze woning was beschikbaar tot 4 september 2025.
Mocht u het actuele huurwoningaanbod willen zien, schrijft u zich dan in.
| Algemene informatie | |
|---|---|
| Plaats: | Hilversum |
| Provincie: | Noord-Holland |
| Wijk: | Zuid |
| Buurt: | Staatsliedenkwartier |
| Type woning: | eengezinswoning |
| Oppervlakte: | 122 m2 |
| Aantal kamers: | 4 |
| Aantal slaapkamers: | 3 |
| Aantal badkamers: | 2 |
| Postcode: | 1215JG |
| Straatnaam: | Neuweg |
| Bouwjaar: | 1927 |
| Huisdieren: | Niet toegestaan |
| Staat van onderhoud: | Gerenoveerd |
| Beschikbaar vanaf: | 14-9-2025 |
| Beschikbaarheid: | binnenkort |
| Periode: | Minimaal voor 1 jaar |
| Conditie woning: | Goed |
| Meubilering: | Kan gemeubileerd worden opgeleverd |
| Financiële informatie | |
|---|---|
| Huurprijs: | € 2850 per maand (exclusief) |
| Eigenschappen woonruimte |
|---|
| Tuin |
| Balkon |
| Terras |
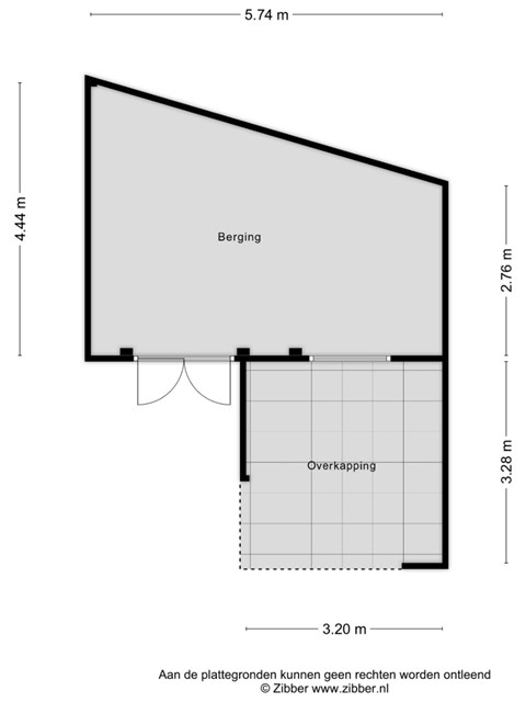
| Berging |
| Zolder |
| Gescheiden douche |
| Bad |
| Energielabel B |
| Eigenschappen omgeving |
|---|
| Parkeren met vergunning |
| In een woonwijk |
| Kindvriendelijke omgeving |
| Nabij winkels |
| Nabij een school |
| Voorwaarden woonruimte |
|---|
| Roken is niet toegestaan |






