Amsterdam (Delflandpleinbuurt-West) - Delflandplein
4-kamer appartement
78 m2
€ 2350 per maand
Details
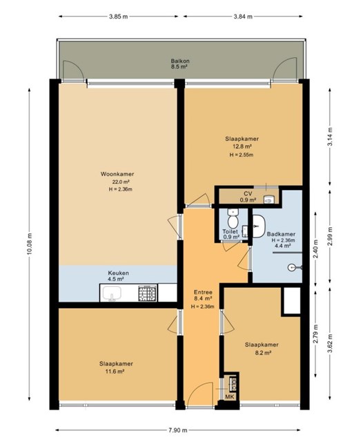
In Amsterdam is een 4-kamer appartement uit 1962 te huur. De woning heeft een oppervlakte van 78 m2 en bestaat uit 4 kamers. De huurprijs bedraagt € 2350 per maand. De servicekosten bedragen € 45 per maand. De borgsom bedraagt 2 maanden huur.
Meer woningen
Deze woning was beschikbaar tot 17 maart 2026.
Mocht u het actuele huurwoningaanbod willen zien, schrijft u zich dan in.
| Algemene informatie | |
|---|---|
| Plaats: | Amsterdam |
| Provincie: | Noord-Holland |
| Wijk: | Westlandgracht |
| Buurt: | Delflandpleinbuurt-West |
| Type woning: | 4-kamer appartement |
| Oppervlakte: | 78 m2 |
| Aantal kamers: | 4 |
| Aantal slaapkamers: | 3 |
| Aantal badkamers: | 1 |
| Postcode: | 1062HT |
| Straatnaam: | Delflandplein |
| Bouwjaar: | 1962 |
| Huisdieren: | In overleg |
| Beschikbaar vanaf: | 14-3-2026 |
| Beschikbaarheid: | binnenkort |
| Periode: | Minimaal voor 1 jaar |
| Conditie woning: | Goed |
| Stoffering: | Gestoffeerd |
| Financiële informatie | |
|---|---|
| Huurprijs: | € 2350 per maand (exclusief) |
| Servicekosten: | € 45 per maand |
| Borgsom: | 2 maanden huur |
| Voorschot gas: | € 110 |
| Eigenschappen woonruimte |
|---|
| Balkon |
| Energielabel A |
| Eigenschappen omgeving |
|---|
| Betaald parkeren in de buurt |
| In een woonwijk |
| Nabij uitvalswegen |
| Aan een rustige weg gelegen |
| Nabij winkels |
| Nabij openbaar vervoer |
| Nabij horeca |
| Voorwaarden woonruimte |
|---|
| Geschikt voor woningdelers |
| Geschikt voor 3 woningdelers |