Utrecht (Lange Elisabethstraat, Mariaplaats en omgeving) - Hamsteeg

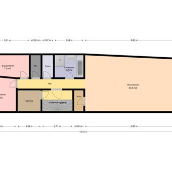
Bovenwoning, 76 m2

€ 2250 per maand

In Utrecht is een bovenwoning uit 1900 te huur. De woning heeft een oppervlakte van 76 m2 en bestaat uit 3 kamers. De huurprijs bedraagt € 2250 per maand. De borgsom bedraagt 2 maanden huur. Beschikbaarheid: 1 februari 2025.

Meer woningen

Deze woning was beschikbaar tot 28 december 2024.

Mocht u het actuele huurwoningaanbod willen zien, schrijft u zich dan in.

Algemeen

  • Plaats: Utrecht
  • Provincie: Utrecht
  • Wijk: Binnenstad
  • Buurt: Lange Elisabethstraat, Mariaplaats en omgeving
  • Type woning: bovenwoning
  • Oppervlakte: 76m2
  • Aantal kamers: 3
  • Aantal slaapkamers: 2
  • Aantal badkamers: 1
  • Bouwjaar: 1900
  • Huisdieren: Niet toegestaan
  • Beschikbaar vanaf: 01-02-2025
  • Periode: Nog te bepalen periode
  • Stoffering: Gestoffeerd

Financieel

  • Huurprijs: € 2250 per maand (exclusief)
  • Borgsom:  2 maanden huur

Eigenschappen woonruimte

  • Dakterras
  • Energielabel A++

Eigenschappen omgeving

  • Betaald parkeren in de buurt
  • Nabij winkels
  • Nabij horeca

Voorwaarden woonruimte

  • Geschikt voor 2 volwassenen
  • Roken is niet toegestaan