Maastricht (Binnenstad) - Kesselskade
3-kamer appartement
72 m2
€ 1495 per maand
Details
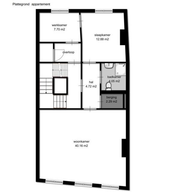
In Maastricht is een 3-kamer appartement uit 1818 te huur. De woning heeft een oppervlakte van 72 m2 en bestaat uit 3 kamers. De huurprijs bedraagt € 1495 per maand. De servicekosten bedragen € 75 per maand. De borgsom bedraagt 2 maanden huur.
Meer woningen
Deze woning was beschikbaar tot 17 mei 2025.
Mocht u het actuele huurwoningaanbod willen zien, schrijft u zich dan in.
| Algemene informatie | |
|---|---|
| Plaats: | Maastricht |
| Provincie: | Limburg |
| Wijk: | Centrum |
| Buurt: | Binnenstad |
| Type woning: | 3-kamer appartement |
| Oppervlakte: | 72 m2 |
| Aantal kamers: | 3 |
| Aantal slaapkamers: | 2 |
| Aantal badkamers: | 1 |
| Postcode: | 6211EN |
| Straatnaam: | Kesselskade |
| Bouwjaar: | 1818 |
| Beschikbaarheid: | in overleg |
| Periode: | Minimaal voor 1 jaar |
| Financiële informatie | |
|---|---|
| Huurprijs: | € 1495 per maand (exclusief) |
| Servicekosten: | € 75 per maand |
| Borgsom: | 2 maanden huur |
| Voorschot gas, water, elektra: | € 155 |
| Eigenschappen woonruimte |
|---|
| Berging |
| Lift |
| CV |
| 2e verdieping |
| Eigenschappen omgeving |
|---|
| Parkeren met vergunning |
| Betaald parkeren in de buurt |
| Vrij uitzicht |
| Omgeving van water |
| In het centrum |
| Voorwaarden woonruimte |
|---|
| Niet geschikt voor woningdelers |
| Geen studenten |






